60 000 ₽/мес

293 ₽ за м²/мес.

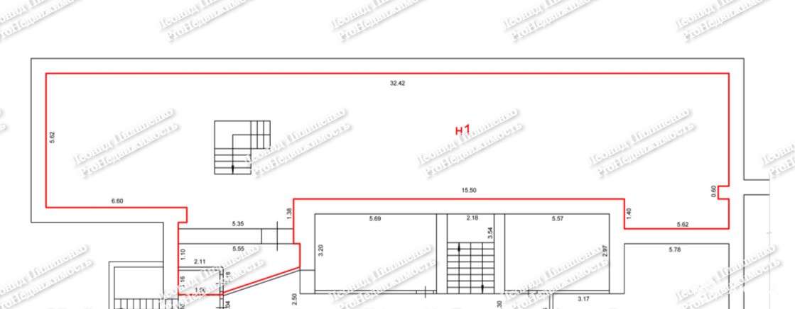
205 м²
Площадь
-1/9
Этаж

Поделиться

Добавить в избранное

Адрес: Промышленный район, Краснодонская 68.

Общая площадь: 205 м ² .

Этаж/этажность: -1/9.

Над помещением нежилой этаж.

Наличие отдельного входа через тамбур.

Высота потолков: 2, 7м.

Наличие пожарной сигнализации + видеонаблюдение.

Возможность перепланировки.

Выделенная мощность: 25 кВт.

Ремонт в помещении: пол плитка, стены под покраску.

В радиусе 100 м. находится пятёрочка, магнит, магнит косметик, 9%, горилка, налоговая служба по промышленному району и т.д.

Присутствует арендатор.

Парковка перед зданием и вдоль дороги.



\r\nУслуги для Арендатора бесплатны.

Дата обновления: 24 октября 2025