10 450 000 ₽

61 762 ₽ за м²

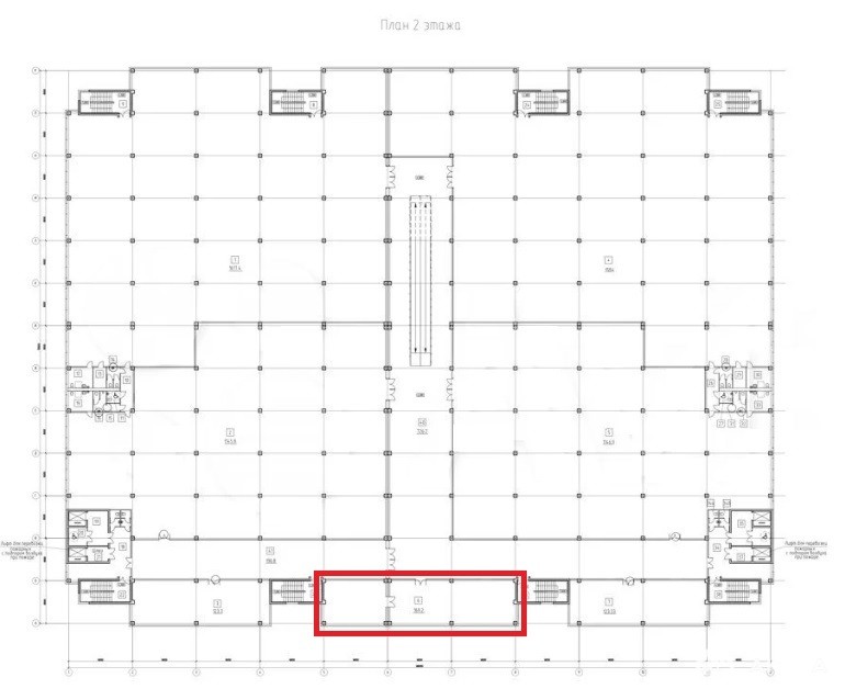
169 м²
Площадь
2/3
Этаж

Поделиться

Добавить в избранное

Продается торговая площадь на 2 этаже торгового центра.


Адрес: г.Самара. Советский район, ул. Красных Коммунаров, 1а. Ближайшее пересечение с улицей Гагарина/22 партсъезда.

Общая площадь: 169, 2 кв.м.

Этаж/этажность: 2/3. Назначение здания: нежилое.

- Вход с улицы Красных Коммунаров.

- Зона разгрузки.

- Подземный паркинг и парковка вокруг здания.

- Высокие электрические мощности.

Высота потолков: 5 м.

Свободная планировка, 2 раздельных санузла на этаже.

В ближайшем окружении располагаются: остановки, крупный жилой массив, спорткомплекс, птичий рынок, школы, детские сады и пр.




На 1 этаже согласованы сетевые якорные арендаторы: продуктовый и строительный магазины.
На 3 этаже будет размещен спортивно-оздоровительный комплекс: теннисный корт и футбольное поле.




Стоимость продажи: 10 450 000 рублей (62 000 р./кв.м)

Дата обновления: 22 октября 2025