680 000 ₽/мес

501 ₽ за м²/мес.

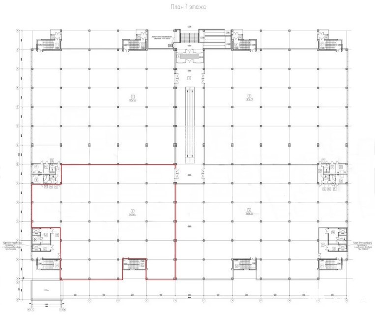
1 358 м²
Площадь
1/3
Этаж

Поделиться

Добавить в избранное

Сдается торговая площадь на 1 этаже торгового центра.


Адрес: г.Самара. Советский район, ул. Красных Коммунаров, 1а. Ближайшее пересечение с улицей Гагарина/22 партсъезда.

Общая площадь: 1357, 9 кв.м.

Этаж/этажность: 1/3. Назначение здания: нежилое.

- Вход с улицы Красных Коммунаров.

- Зона разгрузки.

- Подземный паркинг и парковка вокруг здания.

- Высокие электрические мощности.

Высота потолков: 5 м.

Свободная планировка, 2 раздельных санузла на этаже.

В ближайшем окружении располагаются: остановки, крупный жилой массив, спорткомплекс, птичий рынок, школы, детские сады и пр.




Стоимость аренды: 680 000 рублей (500 р./кв.м) +к.у.

Дата обновления: 22 октября 2025