2 975 000 ₽/мес

850 ₽ за м²/мес.

3 500 м²
Площадь
1/1
Этаж

Поделиться

Добавить в избранное

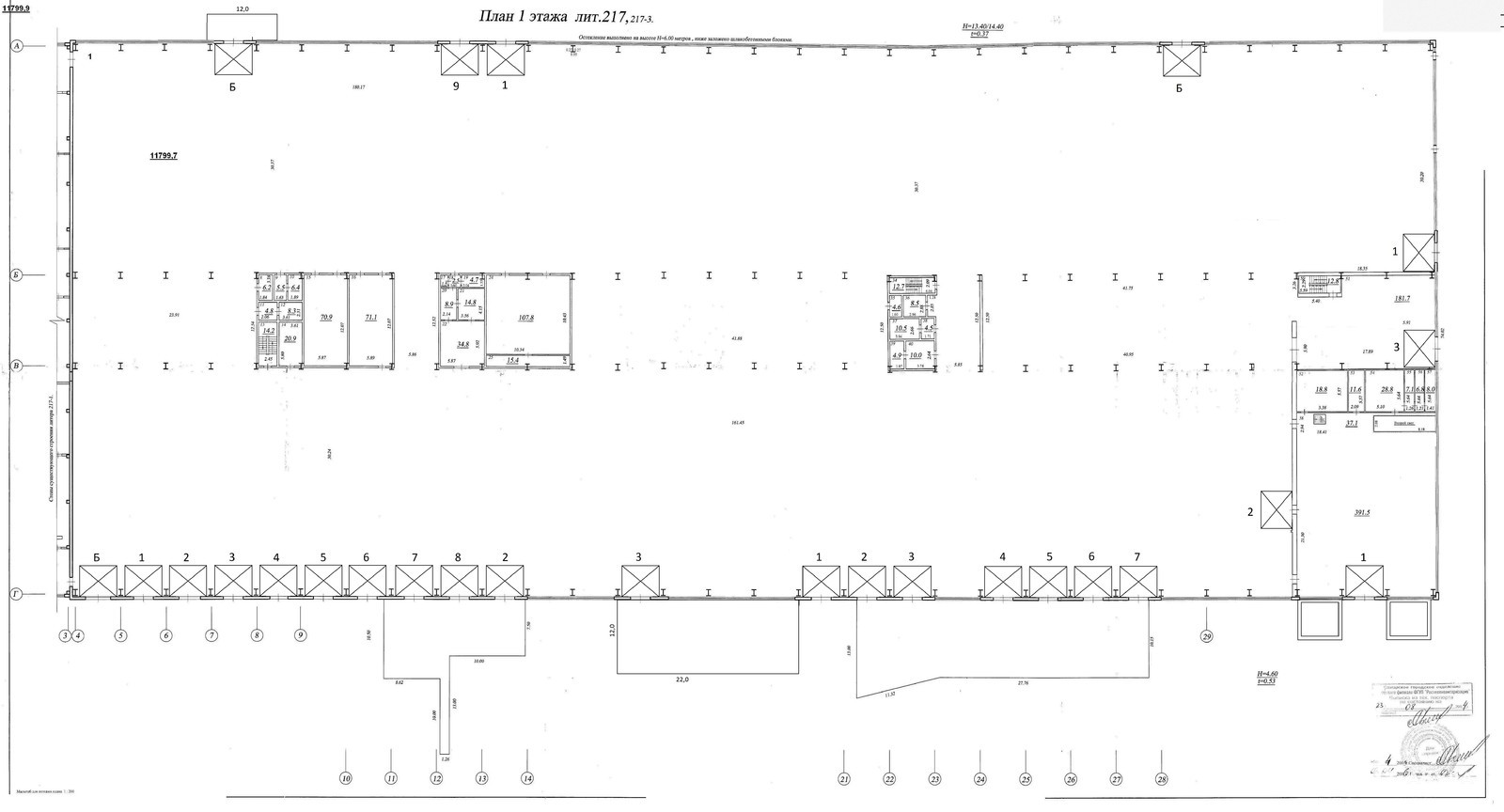
Общая площадь здания – 13 000 кв. м, прямоугольное помещение шириной 72 м, длиной 180 м.

Высота до балки – 10 м. Полы бетонные с антипылевым покрытием. Освещение светодиодное, естественное освещение через зенитные фонари. Склад оборудован АПС и системой пожаротушения. В складских помещениях имеются сан. узлы и бытовые помещения для персонала.

Возможность регулировать температурный режим на складе (собственная газовая котельная).

На уровне 1, 2 м от земли расположены 14 ворот докового типа с погрузочно-разгрузочными площадками регулируемой высотой. На уровне 0, 8 м от земли расположены 8 ворот с рампой для проведения ПРР малотоннажного автотранспорта. Имеются две выносные крытые рампы с высотой: 1, 2 м. Площадки для парковки легковых автомобилей, отстоя большегрузных автомобилей и их маневрирования. Огороженная, освещенная и благоустроенная территория нa охраняемой базе с видеонаблюдением. Возможность аренды офисных помещений в административном здании.

Дата обновления: 13 сентября 2025