35 300 ₽/мес

855 ₽ за м²/мес.

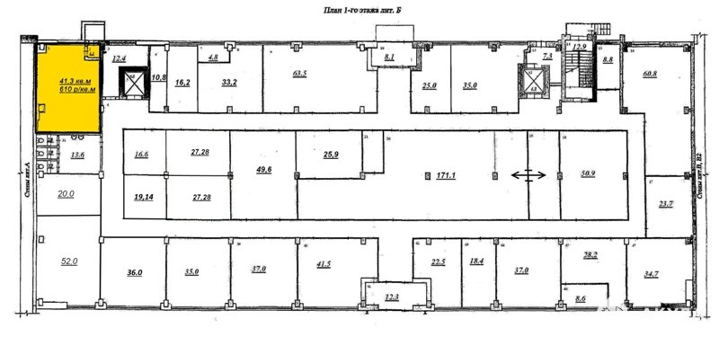
41 м²
Площадь
1/4
Этаж

Поделиться

Добавить в избранное

Предлагаем в аренду торговое помещение на первом этаже четырехэтажного торгово-офисного комплекса. Помещение имеет два выхода. В комплексе расположены строительные и мебельные компании, более 25 организаций, осуществляющих торговлю автозапчастями, 2 крупных автосервиса, кафе и столовая, что обеспечивает высокий пешеходный и автомобильный трафик.В стоимость аренды не входят коммунальные платежи.

Дата обновления: 2 апреля 2026