10 000 000 ₽

200 000 ₽ за м²

50 м²
Площадь
1
Этаж

Поделиться

Добавить в избранное

г.Самара, ул.Ново-Садовая , д.5.Октябрьский район.

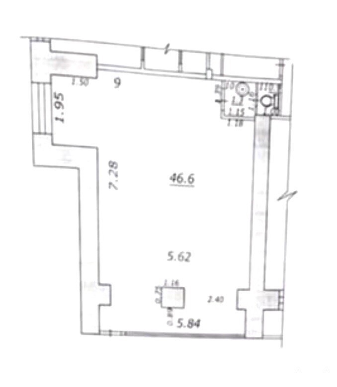
Продается помещение с ремонтом на первой линии.

1 этаж.

Отдельный вход.

Витражные окна со стороны ул.Ново-Садовая.

Общая площадь 50 кв.м.

Выделенная мощность 15 кВт.

Свободная планировка, отдельный санузел.

В ближайшем расположении парковка, все остановки автотранспорта.

Рядом расположены гостиницы, учебные учреждения, кафе, торговые магазины, офисы.

Отличный автомобильный трафик, пешеходный трафик.

Стоимость продажи 10 000 000 рублей.



Дата обновления: 18 марта 2026