Продажа многокомнатной квартиры

246 м²
Площадь
216 м²
Жилая площадь
25 м²
Площадь кухни
3/3
Этаж

36 800 000 ₽

149 594 ₽ за м²

ID объявления 12120912

Поделиться

Добавить в избранное



Продается таунхаус в ЖК "Иволга": новый дизайнерский ремонт!

Причина продажи: Переезд. Возможен обмен на недвижимость с вашей доплатой.

Расположение: Вторя линия от реки Волга (пересечении ул. Лейтенанта Шмидта и ул. Клары Цеткин). Всего 70 метров от берега.

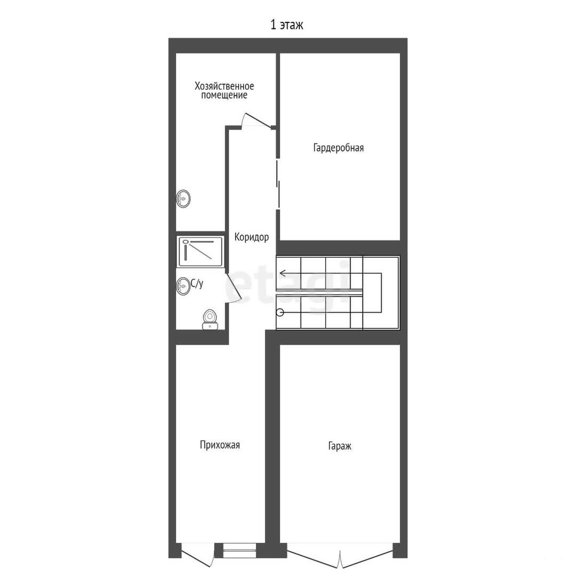
Структура таунхауса:
- 1-й уровень: гараж, прихожая, санузел, котельная, прачечная, большая гардеробная.
- 2-й уровень: кухня-гостиная, санузел, выход на участок.
- 3-й уровень: 2 детские комнаты, детский санузел, мастер-спальня с собственным санузлом.
- 4-й уровень: выход на плоскую крышу с панорамным видом на Волгу.

Преимущества:
- Слышен шум волн и уютная атмосфера.
- Приватное и уединенное место рядом с центром города: 10 минут до площади Славы, 15 минут до ул. Ленинградской.
- Уважаемые соседи, высокие инвестиционные перспективы.
- Набережная в процессе строительства, планируется Яхт-клуб и стоянка для катеров в шаговой доступности.

Современная функциональная планировка:
- Панорамный вид на Волгу.
- Эксплуатируемая плоская крыша, возможен небольшой бассейн.
- Каждому этажу соответствует отдельный санузел.
- Готовность к установке любого камина.

Строительные материалы:
- Кирпич, плиты перекрытия, монолитные конструкции.
- Качественные пластиковые окна.
- Индивидуальное газовое отопление, установлен газовый котел.

Коммуникации:
- Магистральный газ, электричество, центральное водоснабжение, центральная канализация, вентиляция.
- Обособленная территория с охраной и видеонаблюдением.

Если вас заинтересовал этот уникальный объект, свяжитесь с нами для получения дополнительной информации и организации просмотра!
Код пользователя: 146697
Номер в базе: 3450628

Дата обновления: 9 октября 2025