40 м²
Площадь
32 м²
Жилая площадь
5.8 м²
Площадь кухни
3/5
Этаж

6 150 000 ₽

153 750 ₽ за м²

ID объявления 12163903

Поделиться

Добавить в избранное



Предлагаем к покупке ИДЕАЛЬНУЮ 2 х комнатную квартиру с ИДЕАЛЬНОЙ планировкой, в ИДЕАЛЬНОЙ локации сочетание городского комфорта и спокойной жилой среды

Объект отличается исключительной транспортной доступностью: в пяти минутах ходьбы находится станция метро «Алабинская», а до железнодорожного вокзала можно добраться всего за 5-7 мин на общественном транспорте

Рядом расположены престижные учебные заведения — лицей СамЛИТ, школа №132, школа № 30, мед колледж им Ляпиной, университет САМГТУ и Мед Университет

Инфраструктура развита комплексно: в самом доме расположены несколько магазинов, включая «Магнит» на первом этаже, а в шаговой доступности — гипермаркет «Перекресток» Во дворе организована закрытая парковка исключительно для жильцов дома
Набережная реки Волги находится в 7-10 минутах неспешной прогулки.

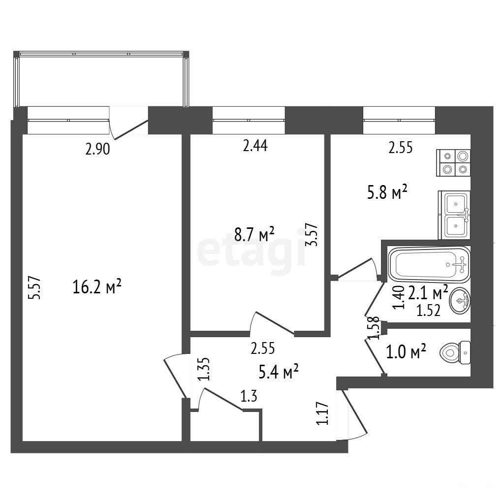
Планировка практичная, с изолированными комнатами
Все инженерные системы, включая радиаторы отопления и стояки, были полностью обновлены в рамках программы капитального ремонта, что гарантирует надежность и отсутствие капитальных затрат в обозримом будущем. Окна и балкон застеклены качественными стеклопакетами от компаний «Свет» и «ИнРос», балкон дополнительно отделан деревом, что создает дополнительный комфорт. В квартире установлены двери из массива дерева и две входные двери с надежными замками.
Кухонная мебель остается новому владельцу.


Юридический статус объекта: два взрослых собственника с 2013 г, без долгов и обременений, рассмотрим любые формы оплаты

Два взрослых собственника. Полная сумма в договоре. Документы готовы к быстрому выходу на сделку. Рассмотрим любые формы оплаты.

Юридическое сопровождение ведет Федеральное Агентство Недвижимости Этажи компания на рынке с 2000 года более 180 филиалов ПО СТРАНЕ и за ее пределами. Наша компания единственная по городе предоставляет покупателю СЕРТИФИКАТ ЮРИДИЧЕСКОЙ ЧИСТОТЫ сделки. Гарантийный сертификат предоставляется клиенту бесплатно сразу после покупки недвижимости.

Помощь в одобрении Ипотеки: БЕЗ ПЕРВОНАЧАЛЬНОГО ВЗНОСА, без официального трудоустройства, без подтверждения официального дохода под более низкие процентные ставки, подача документов сразу в несколько банков одновременно не выходя из офиса.

Покупка и подбор новостройки совершенно БЕСПЛАТНО. Звоните! Ответим на все вопросы, запишемся на просмотр!



Код пользователя: 99464
Номер в базе: 10036774

Дата обновления: 24 октября 2025

Квартира От собственника