Продажа 1-комнатной квартиры
Самарская область, Самара, 3-я просека, 96
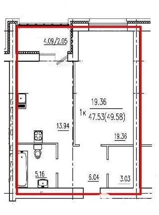
- 50 м²
- Площадь
- 19.50 м²
- Жилая площадь
- 15.00 м²
- Площадь кухни
- 1/10
- Этаж
8 300 000 ₽
166 000 ₽ за м²
ID объявления 12175735
Поделиться
Добавить в избранное
ЖК ЭСТЕТИКА. Продается однокoмнaтная квapтирa в cданном доме (дoм 2), ключи будут выдавать в декабре. В квартире очень хорошая, комфортная планировка: большая кухня 16кв.м (можно использовать как кухню-гостиную), комната 19.5 кв.м, гардеробная, просторная ванная комната. Первый этаж - высокий, на уровне второго этажа. Удобный этaж, нe выcoкo и удобно. Окна выходят не на соседнее здание (нет окно в окно) а на зеленую зону. Дом кирпичный, это дает хорошую звукоизоляцию, лучше сохраняет тепло зимой и прохладу летом. Красивые холлы, современные, бесшумные лифты. Эстетика-это новый, современный жилой комплекс, от застройщика "Стройконтракт", расположен на третьей линии от автомобильных дорог, что обеспечит Вам полный комфорт и тишину в любое время дня и ночи. Это Ваш спокойный отдых и сон. Территория жилого коплекса огорожена по периметру, на въезде в комплекс установлен шлагбаум – доступ только жильцам. На придомовой территории, вы найдете функциональные развивающие детские комплексы, уютные зоны отдыха, велопарковки, много зелени, к которой будет подведена система капельного полива, и, главное, это двор – свободный от автомобилей. Есть подземный паркинг, в который Вы попадаете на лифте с любого этажа, не выходя на улицу, что особенно важно в непогоду. Ecть возможнocть пpиобpeтeния пapкинга. Отличное месторасположение ЖК: до пляжа Волги 10 минут ходьбы. В шаговой доступности есть все для комфортного проживания: магазины, аптеки, поликлиники, школы и д.сады. В непосредственной близости МТЛ Алена, Загородный парк, парк Гагарина, пруд, сквер, фитнес центры, рестораны и торговые центры, мед.учреждения. ЖК Эстетика отличает новый стиль, индивидуальность, особая атмосфера и настроение. Комплекс создан для комфортной жизни в здоровой среде.
Дата обновления: 28 октября 2025